Расчет и проектирование конструкций

Выполним разработку отдельных конструктивных решений, если Вам необходимо дополнить свой проект разделом по строительной части.

Расчет и конструирование фундаментов. Проектирование фундаментов. Ленточные, свайные, плитные фундаменты.

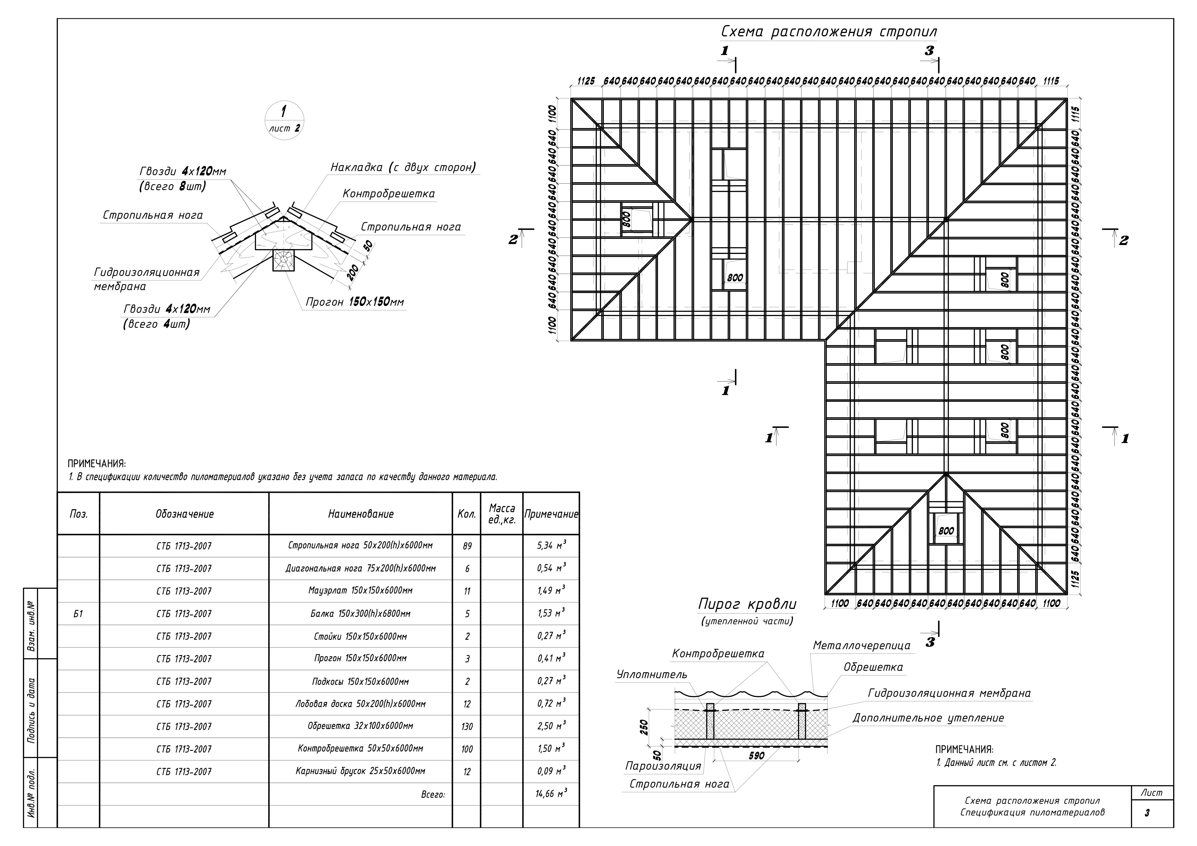
Крыша. Проектирование и расчет. Скатная и плоская кровля конструктивные решения. Стропильная система.

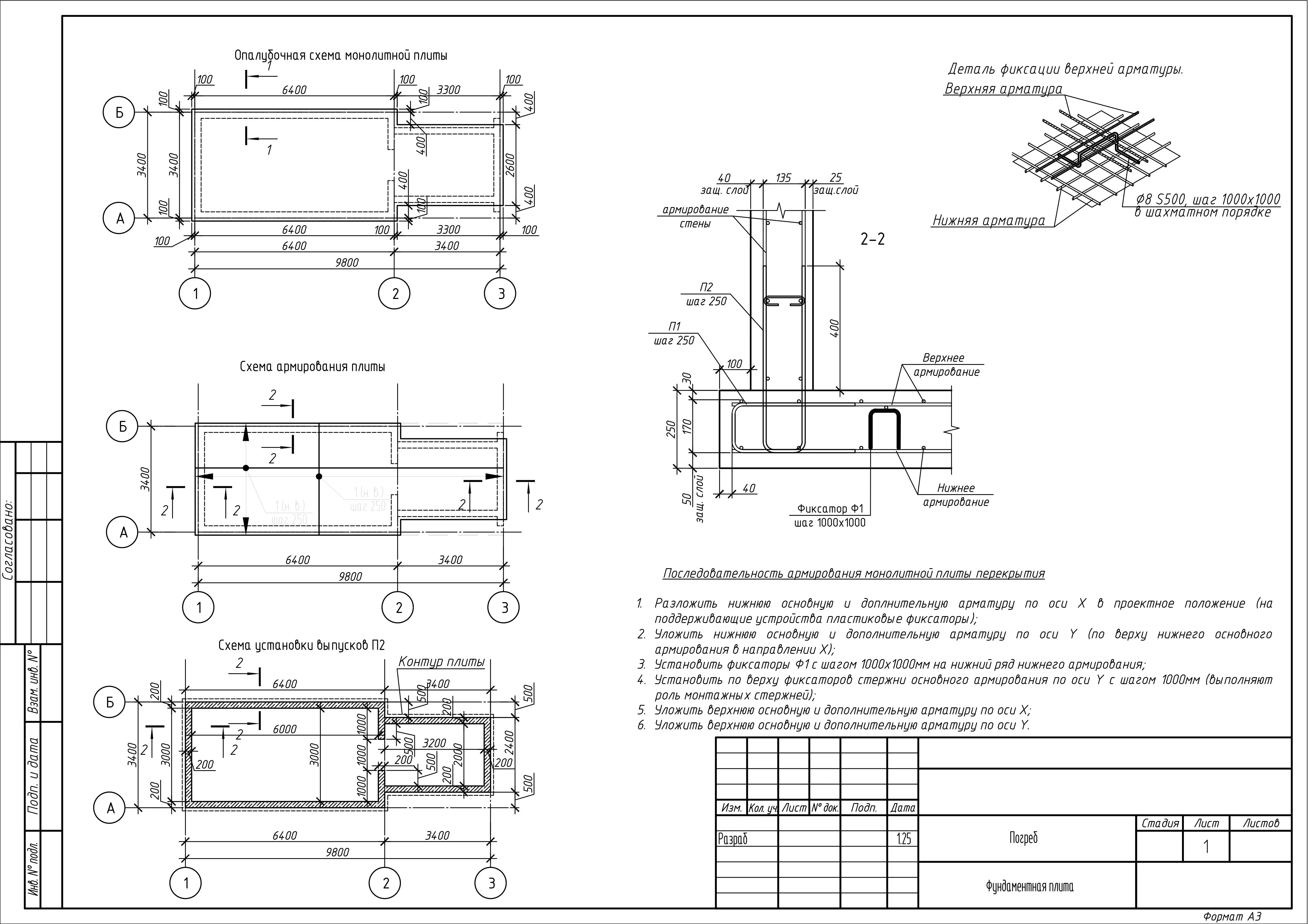
Монолитное перекрытие. Расчет. Проект (рабочие чертежи и спецификации).

Деревянные перекрытия. Расчет. Проект (рабочие чертежи и спецификации). Расчет деревянной фермы.

Замена фундамента. Расчет на нагрузки.

Выполним инженерно-геологические изыскания

Архитектурно-строительный проект (АС) включает в себя два основных раздела: Архитектурный (АР) и Конструктивный (КР). Это идеальный набор рабочих чертежей, который полностью удовлетворяет требования для получения разрешения на строительство и осуществления строительных работ. Особенности комплектации чертежей для каркасных домов и домов из бруса могут варьироваться, что отражается в примерах проектов таких конструкций.

Проектная документация предоставляется в виде печатных альбомов формата А3, с двумя экземплярами каждого документа.

Архитектурный проект

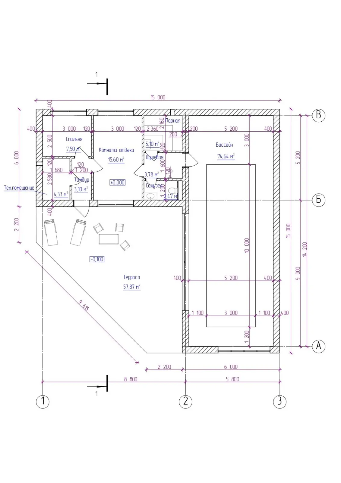
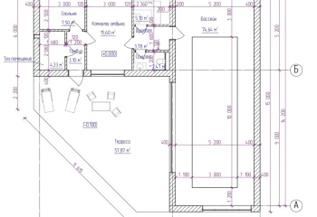
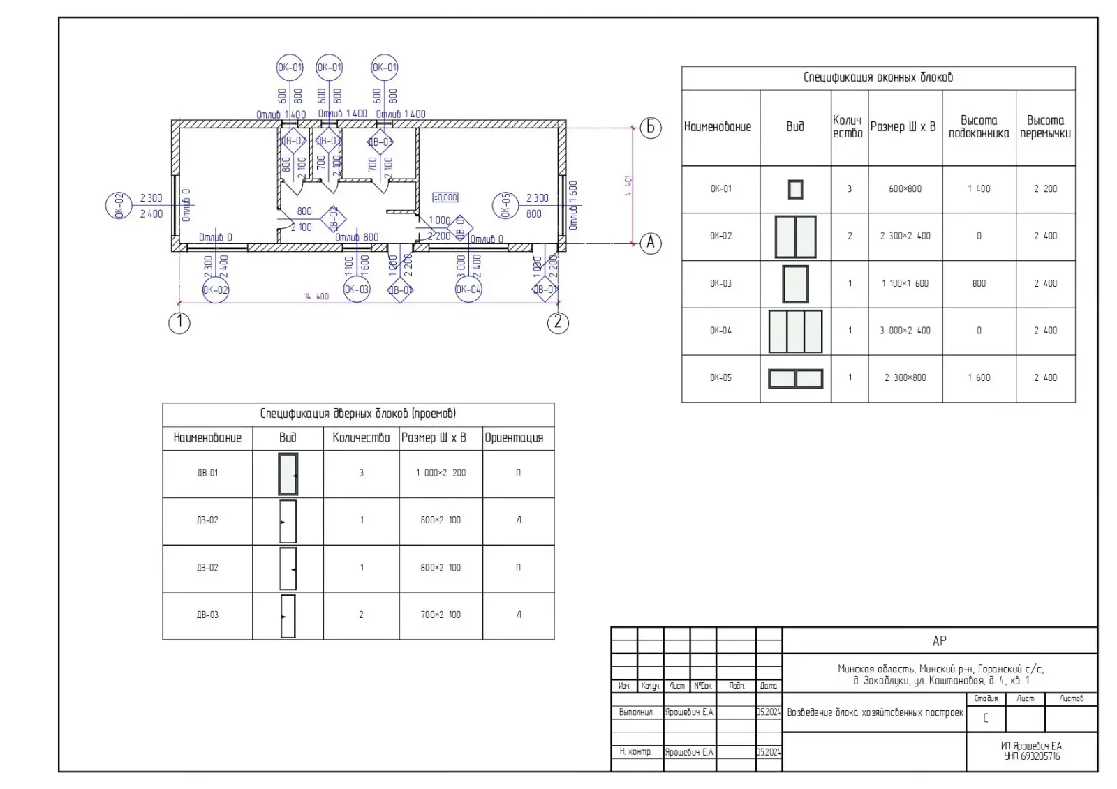
Архитектурный проект дома позволяет представить, как будет выглядеть ваш будущий дом на участке, включая его размеры, этажность, планировку и фасады. В проект включены все необходимые чертежи для согласования в местном органе власти:

  • Размещение на земельном участке;
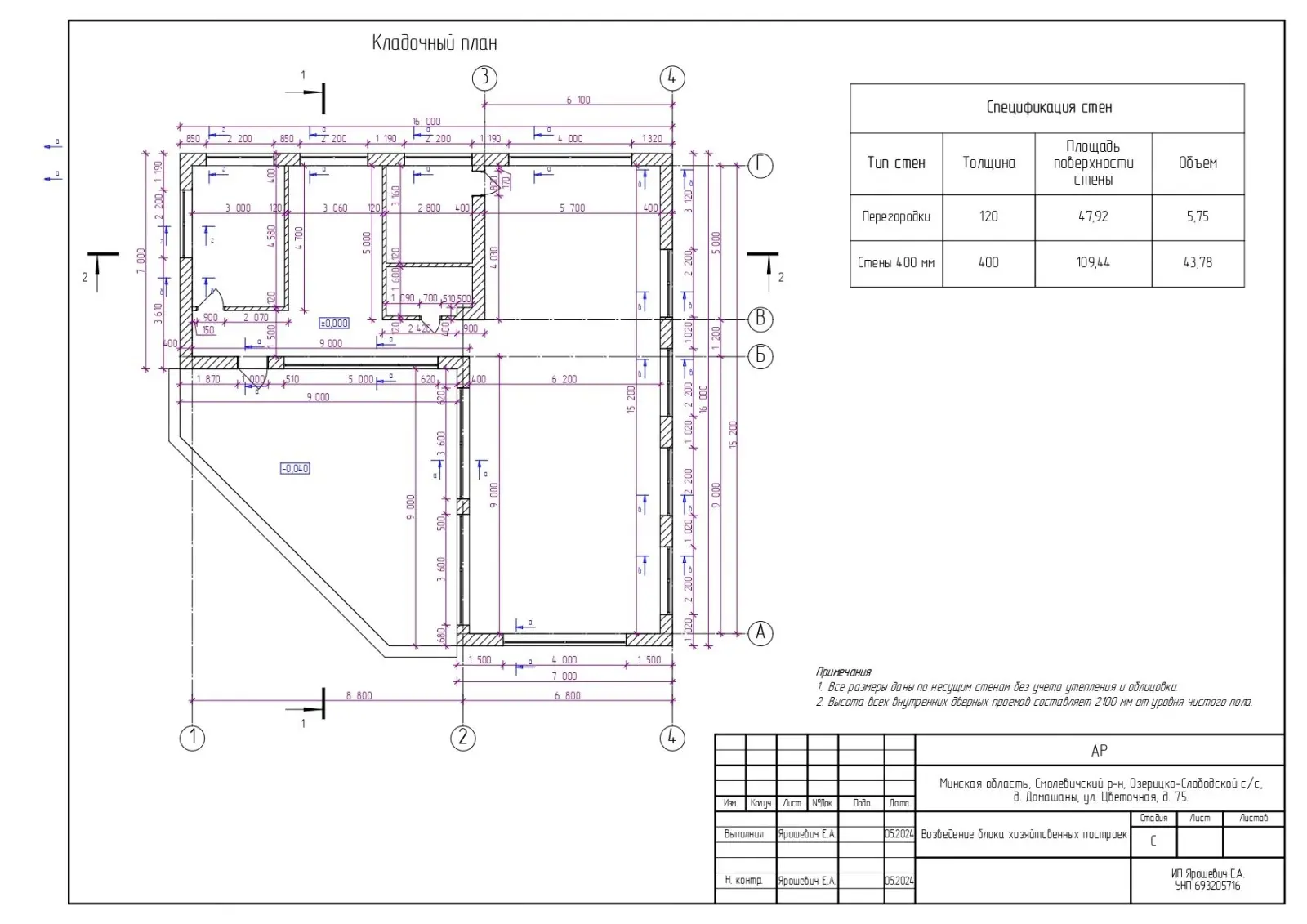
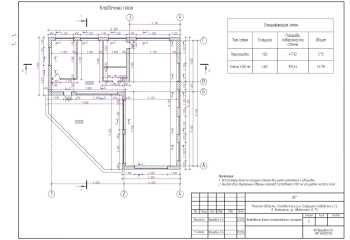
  • План фундамента;
  • Планы этажей;
  • Разрезы;
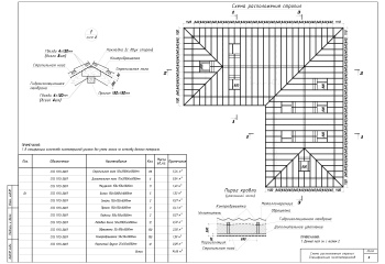
  • План кровли;
  • Фасады с четырех сторон;
  • 3D-визуализация (несколько видов).

Сроки разработки такого проекта составляют от 2 недель.

Существует два типа архитектурных проектов, которые мы можем разработать:

Типовой проект

Типовой проект создается, когда заказчик предоставляет готовое планировочное решение, включая информацию о материалах, площади комнат и их размещении. Мы адаптируем его к вашему участку и вносим незначительные изменения.

Стоимость такого проекта начинается от 10 BYN за 1 м².

Индивидуальный проект

Индивидуальный проект разрабатывается с нуля совместно с заказчиком, который имеет общее представление о площади дома и его функциональных помещениях.

Стоимость индивидуального проекта начинается от 20 BYN за 1 м².

Конструктивный проект

Конструктивный проект (КР) представляет собой проект с детальной проработкой и расчетом конструктивных элементов дома, таких как фундамент, перекрытия, крыша и другие. В проект включены все необходимые расчеты, чертежи и развертки, которые необходимы подрядчикам для выполнения строительных и монтажных работ.

Конструктивный проект разрабатывается после завершения архитектурного раздела.

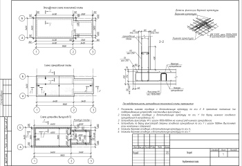
Состав конструктивного проекта может включать следующие разделы:

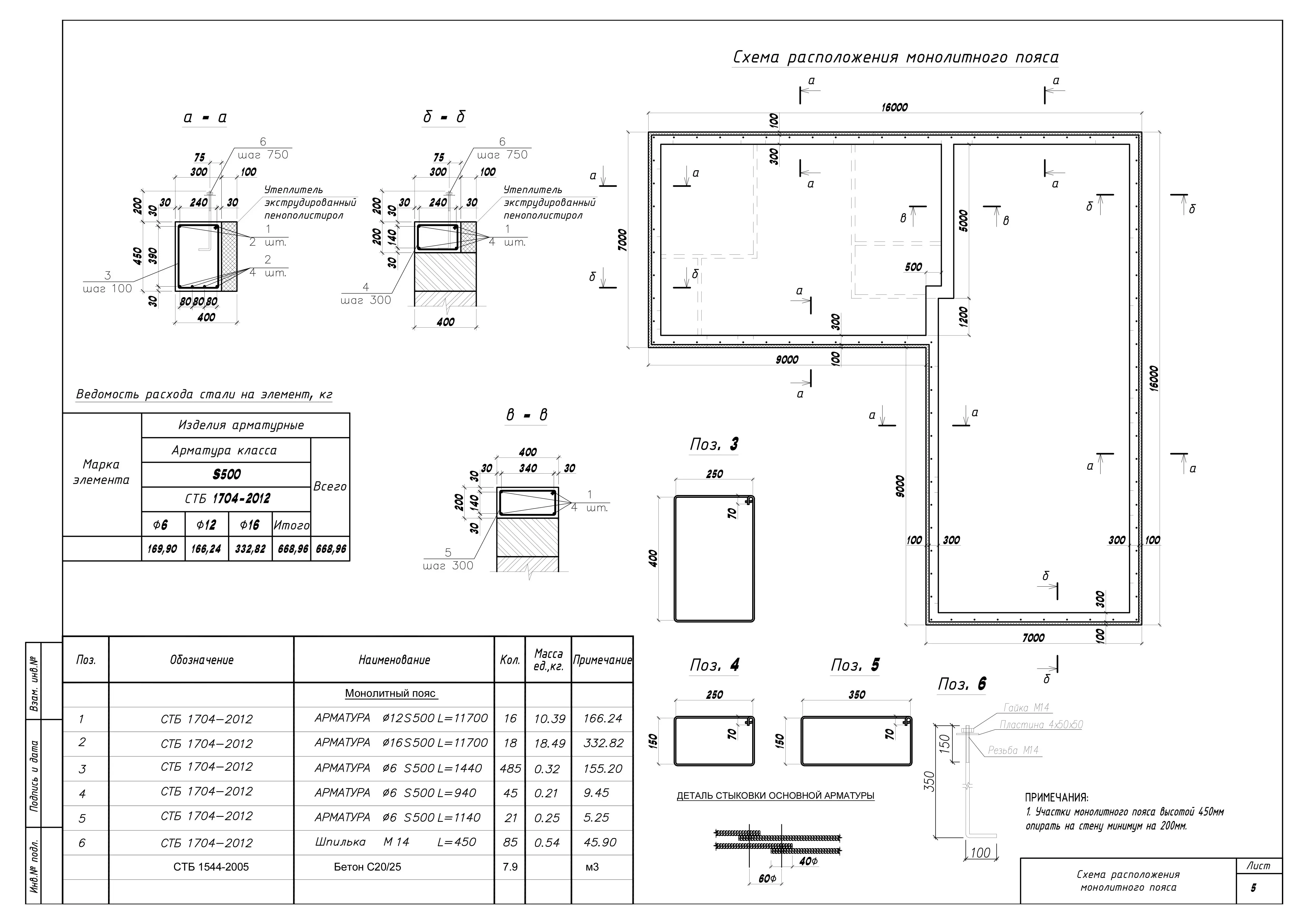
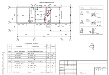
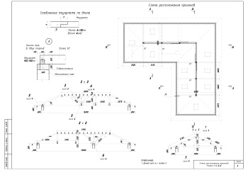
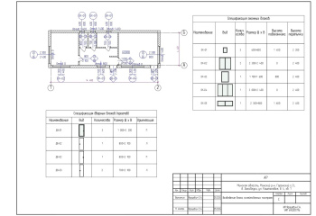
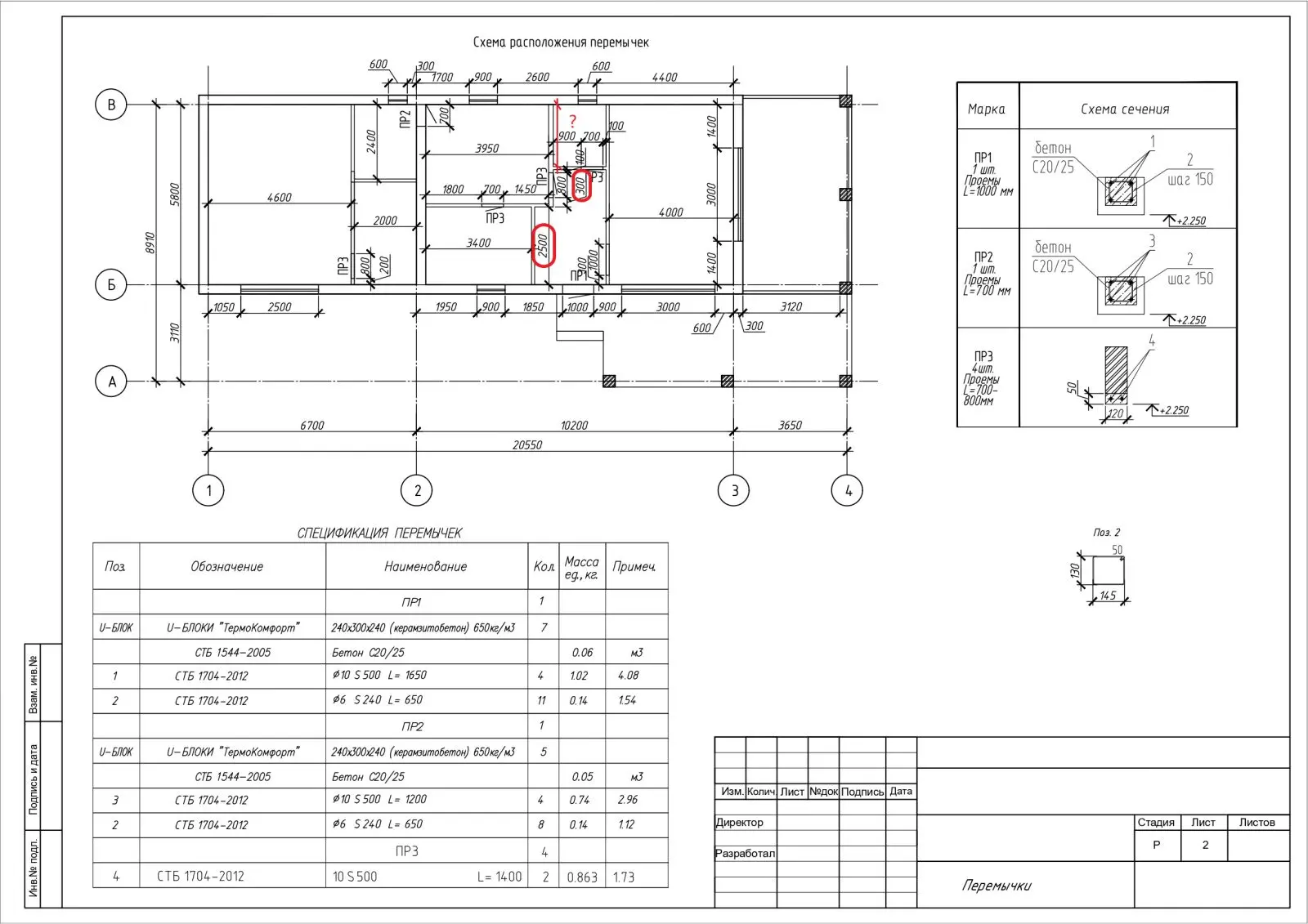
  • КЖ - конструкции из железобетона. Это расчеты всех несущих элементов дома, выполненных из железобетона: фундамент, перекрытия, лестница, плоская крыша и другие.
  • КД - конструкции из дерева. Расчет всех элементов дома из дерева: перекрытия, стропильная система, каркасные конструкции и прочее.
  • КМ - конструкции из металла. Расчет элементов дома из металла: лестница, навесы, террасы и другие.

В конструктивный проект могут входить следующие чертежи:

  • План фундамента с детальными расчетами;
  • План перекрытий с детальными расчетами;
  • План кровли с детальными расчетами;
  • Спецификации;
  • Узлы.

При разработке архитектурного и конструктивного проектов вы получите полный и детализированный проект для строительства дома, с необходимой информацией для строителей.

Кроме того, мы разрабатываем конструктивные проекты для отдельных типов конструкций:

  • Фундамент
  • Перекрытия
  • Крыша
Есть вопросы?
Оставьте заявку или позвоните нам по телефону +375 (44) 576-24-99

Контакты

  • г. Минск, ул. Якубова 10
  • +375 (44) 576-24-99
Оставить заявку
Заказать консультацию
Нажимая на кнопку, вы даете согласие на обработку своих персональных данных