- Главная
- Проекты домов, бань
- Строительство спа-комплексов
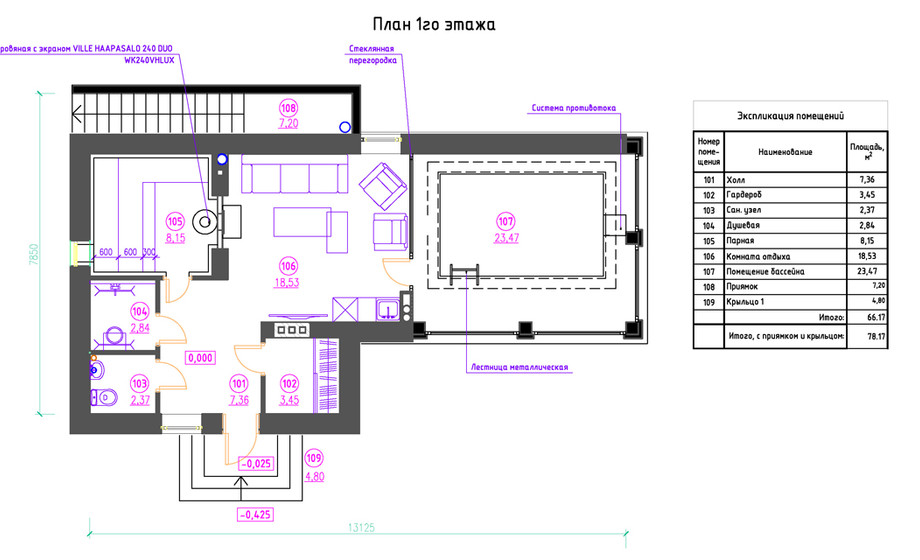
- Е-77. СПА-комплекс с цокольным этажом 7.9*13.2 метров.
бассейн, цокольный этаж, комната отдыха, русская парная, 2 сан-узла.:
В стоимость базового строительства без цокольного этажа входит работы и материалы
АР (архитектурный проект) фундамент свайно- ростверковый (геология) , ввод и разводка канализации, водопровода(гильза), электроэнергии (гильза) наружные стены из газосиликатного блока (300мм, внутренние и перегородки (120мм) , бетонные черновые полы, крыша металлочерепица «Супер-монтерей» толщина металла 0,5 мм , межэтажное перекрытие деревянные балки 200 мм с утеплением 200 мм.
В стоимость не включена чаша бассейна — по согласованию чаша бассейна из монолитного железобетона или композитная чаша бассейна.
В По согласованию возможно замена стен на керамзитобетонные стены или железобетонный каркас с заполнением любым видом блоков.
При строительстве с отделкой под ключ выполним визуализацию всех помещений для точного расчета стоимость работ и материалов.
Стоимость строительства с цокольным этажом 195 000 бел рублей
Гарантия на выполненные работы 48 месяцев. Предлагаем строительство с отделкой под ключ.
полный комплекс строительных услуг
Создаем проект дома, либо выбираете из готовых
Проводим геодезию участка
Возводим фундамент
Возводим стены и перекрытия
Кровельные работы
Фасадные работы
Инженерные работы
Получистовая отделка
Чистовая отделка
дачных домов, коттеджей , бань,
в любой ценовой категории,
в любой точке Республики Беларусь!
утвердим проект, который вам понравится
и построим все под ключ.






