- Главная
- Проекты домов, бань
- Проекты спа-комплексов
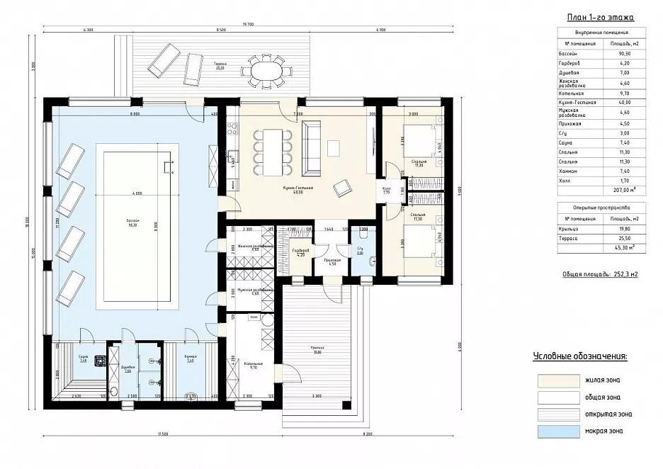
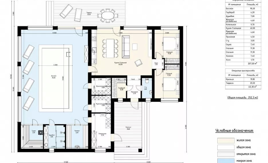
- КС-99. Банный комплекс с бассейном 19.7* 18 метров
бассейн, русская парная, турецкий хамам, 1 сан-узел,, гостиная, две спальни, раздевалки мужская - женская:
Строительство современного СПА-комплекса. Основные преимущества банного комплекса – просторный бассейн, уютная зона отдыха и панорамные окна, наполняющие помещение светом.
Современный минималистичный стиль подчеркивает гармонию с природой. Строительство из блоков обеспечивает долговечность и теплоизоляцию, делая проект идеальным для загородного участка.
Внутренние помещения – бассейн, баня с парной, помещение для хамам, душевые, кухня, комнаты отдыха, две спальни, раздевалки мужская и женская, санузлы. Открытые пространства – 80 м²: террасы и зона отдыха. Банный современный СПА-комплекс создан для комфортного отдыха всей семьей.
В стоимость строительства входит: АР (архитектурный проект) КР (фундамент, стены, кровлю) фундамент (геология) , ввод и разводка канализации, водопровода(гильза), электроэнергии (гильза) , наружные стены из газосиликатного блока (300мм, внутренние и перегородки (120мм) , бетонные черновые полы, монолитное перекрытие, бетонная чаша бассейна с техническим помещением.
Материал стен можно изменять по желанию. Стены могут быть из газосиликатного блока, керамзитобетонного блока, керамического блока.
Гарантия на выполненные работы 48 месяцев. Предлагаем строительство с отделкой под ключ.
полный комплекс строительных услуг
Создаем проект дома, либо выбираете из готовых
Проводим геодезию участка
Возводим фундамент
Возводим стены и перекрытия
Кровельные работы
Фасадные работы
Инженерные работы
Получистовая отделка
Чистовая отделка
дачных домов, коттеджей , бань,
в любой ценовой категории,
в любой точке Республики Беларусь!
утвердим проект, который вам понравится
и построим все под ключ.






