- Главная
- Проекты домов, бань
- Проекты домов
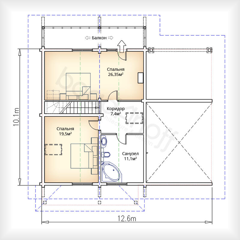
- КМ-99. Жилой дом 12.6*10.1 метр.
3 спальни, гостиная, 2 сан-узла, кухня, балкон.:
Уникальный проект жилого дома в стиле «Шале» первый этаж из газосиликатного или керамзитобетонного блока. Второй этаж из профилированного бруса сечением 200*142 мм.
В стоимость строительства входит: АР (архитектурный проект) КР (фундамент, стены, кровля) фундамент (геология) , ввод и разводка канализации , ввод (гильзы) водопровода ,электричества, наружные стены из газосиликатного блока (300мм),профилированный брус 200*142 мм, бетонные черновые полы 100 мм внутренние перегородки (120мм) крыша метало- черепица толщина металла 0,5 мм , межэтажное перекрытие железобетонные плиты перекрытия.
Предлагаем строительство с отделкой под ключ. Гарантия на выполненные работы 48 месяцев.
полный комплекс строительных услуг
Создаем проект дома, либо выбираете из готовых
Проводим геодезию участка
Возводим фундамент
Возводим стены и перекрытия
Кровельные работы
Фасадные работы
Инженерные работы
Получистовая отделка
Чистовая отделка
дачных домов, коттеджей , бань,
в любой ценовой категории,
в любой точке Республики Беларусь!
утвердим проект, который вам понравится
и построим все под ключ.














