- Главная
- Проекты домов, бань
- Проекты бань
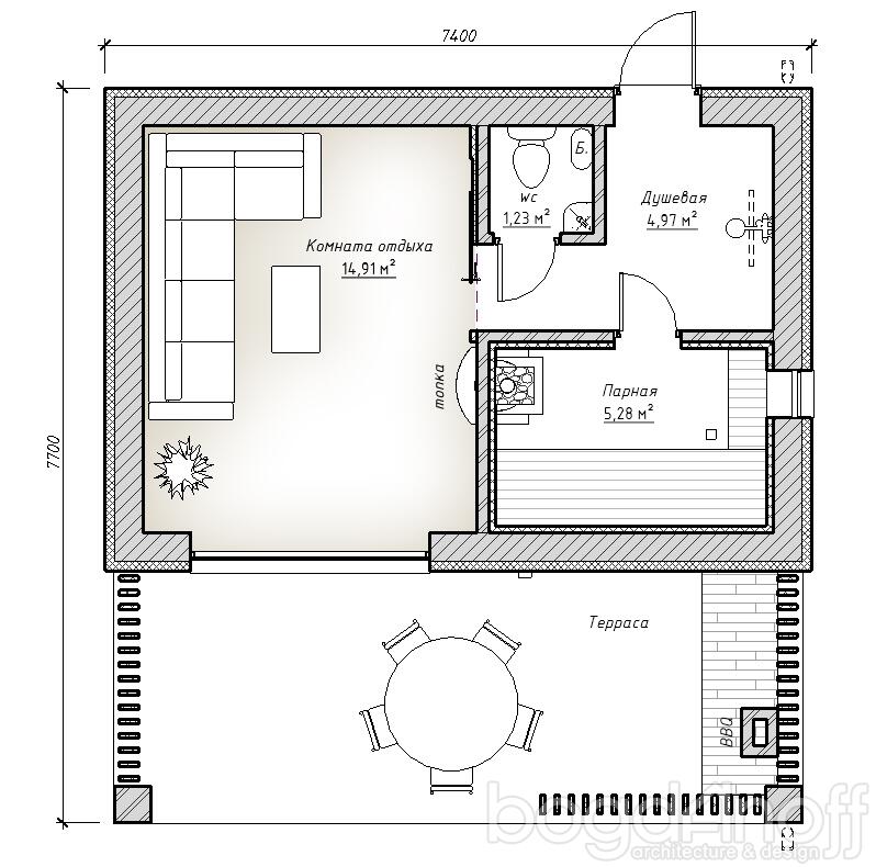
- РЛ-55 Комфортабельная баня 7.7 *7.4 метров
парная, комната отдыха, 1 сан-узел, душевая.:
Нашими специалистами был разработан проект небольшой стильной бани. Несмотря на компактные размеры ,баня органично обьединяет в себе все необходимые зоны для полноценного отдыха, делая ее идеальным решением для загородного дома.
Проект включает несколько зон : Парная рассчитана на несколько человек.
Комната отдыха оформлена с акцентом на уют и удобство.
Терраса дополняет внутренне пространство , превращая баню многофункциональный уголок для отдыха.
Мокрая зона для мытья . Плюс сан-узел.
Этот проект подходит для тех кто ценит уют и комфорт в кругу друзей и близких.
В стоимость базового строительства входит работы и материалы : АР (архитектурный проект) фундамент свайно-ростверковый (геология ???) , ввод и разводка канализации, водопровод (гильза) , электроэнергия (гильза) , наружные стены из газосиликатного блока 300 мм, перегородки 120 м, крыша метало- черепица «Монтерей» толщина металла 0,5 мм , межэтажное перекрытие деревянные балки 200мм с утеплением 200 мм.
Гарантия на выполненные работы 48 месяцев. Предлагаем строительство с отделкой под ключ.
При строительстве с отделкой под ключ предлагаем визуализацию всех помещений.
Визуализация помогает заказчику определиться, подходит ли ему этот вид отделки интерьера или экстерьера или это требует доработки. Это позволит сэкономить время на переделки в строительстве, так как модель проще переделать, чем ремонт.
полный комплекс строительных услуг
Создаем проект дома, либо выбираете из готовых
Проводим геодезию участка
Возводим фундамент
Возводим стены и перекрытия
Кровельные работы
Фасадные работы
Инженерные работы
Получистовая отделка
Чистовая отделка
дачных домов, коттеджей , бань,
в любой ценовой категории,
в любой точке Республики Беларусь!
утвердим проект, который вам понравится
и построим все под ключ.






