- Главная
- Проекты домов, бань
- Проекты бань
- СН-70. Современная баня в стиле "ХАЙ-ТЕК" 13*11 метров.
сауна, душевая, сан-узел, комната отдыха, навес для автомобиля.:
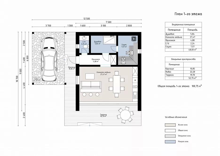
Главное преимущество нашего проекта который мы подготовили к строительному сезону 2025 года — просторная комната отдыха 27,5 м² с панорамным остеклением, наполняющим помещение светом и открывающим вид на природу. Строительство из блоков обеспечивает прочность и долговечность. Внутренние помещения общей площадью 48 м² включают: комнату отдыха 28 м², сауну или русская парная 8 м², душевую 6 м², санузел 2 м² и прихожую 5 м². Открытые пространства занимают 53 м²: терраса 20 м², крыльцо 11 м², навес 22 м². Проект идеально для загородного отдыха, сочетая стиль, комфорт и единство с природой.
В стоимость строительства входит: АР(архитектурный проект) КР (конструктивное решение: фундамент, стены, кровля) фундамент(геология) , ввод канализации, водопровода, электроэнергии, наружные стены из газосиликатного блока (300мм) бетонные черновые полы 100 мм, внутренние и перегородки (120мм) , балки перекрытия 200 мм ., покрытие кровли проф-лист 0.50 мм.
.
Предлагаем строительство с отделкой под ключ. Гарантия на выполненные работы 36 месяцев.
Ориентировочная стоимость с отделкой под ключ включая навес , все работы и материалы (включая банную печь типа: Южная 35, Атмосфера XL, Сочи )
составляет 420 000 бел рублей.
полный комплекс строительных услуг
Создаем проект дома, либо выбираете из готовых
Проводим геодезию участка
Возводим фундамент
Возводим стены и перекрытия
Кровельные работы
Фасадные работы
Инженерные работы
Получистовая отделка
Чистовая отделка
дачных домов, коттеджей , бань,
в любой ценовой категории,
в любой точке Республики Беларусь!
утвердим проект, который вам понравится
и построим все под ключ.









