- Главная
- Проекты домов, бань
- Проекты бань
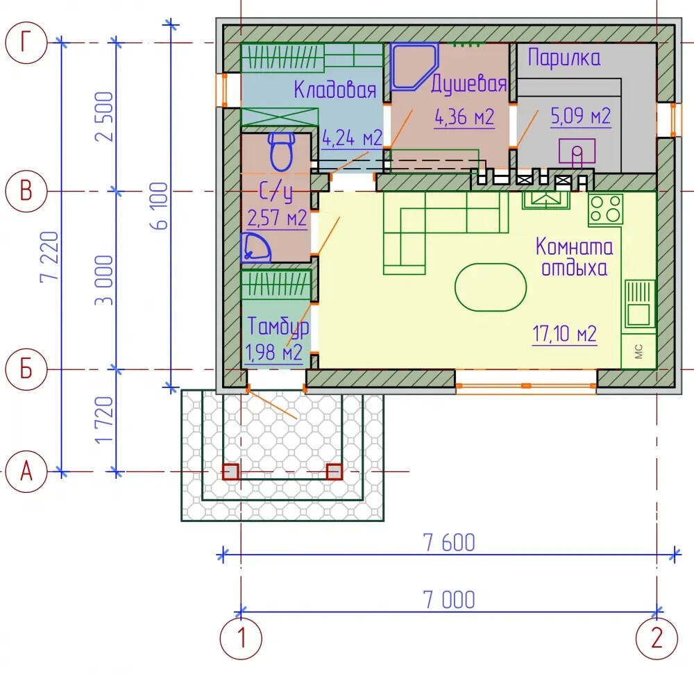
- К-002 Баня с парной 7.6*6.10 м.
Планировка:
комната отдыха, душевая, кладовая, парилка.
В стоимость базового строительства входит работы и материалы : АР (архитектурный проект) фундамент свайно-ростверковый (геология ???) , ввод и разводка канализации, водопровод (гильза) , электроэнергия (гильза) , наружные стены из газосиликатного блока 300 мм, перегородки 120 м, крыша метало- черепица «Монтерей» толщина металла 0,5 мм , межэтажное перекрытие деревянные балки 200мм с утеплением 200 мм.
Гарантия на выполненные работы 48 месяцев. Предлагаем строительство с отделкой под ключ.
полный комплекс строительных услуг
Создаем проект дома, либо выбираете из готовых
Проводим геодезию участка
Возводим фундамент
Возводим стены и перекрытия
Кровельные работы
Фасадные работы
Инженерные работы
Получистовая отделка
Чистовая отделка
дачных домов, коттеджей , бань,
в любой ценовой категории,
в любой точке Республики Беларусь!
утвердим проект, который вам понравится
и построим все под ключ.



